中古一戸建て 福岡市東区西戸崎5丁目
所在地
福岡市東区西戸崎5丁目
11,800万円
92.86坪
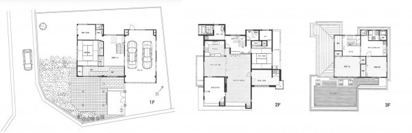
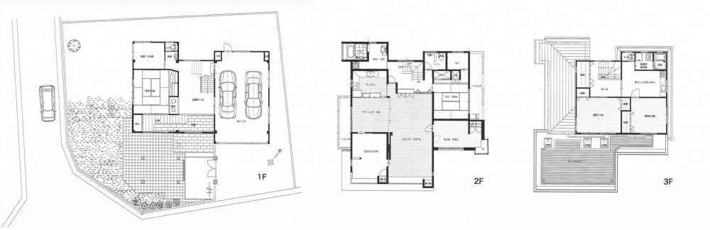
7LDK
◎福岡市東区西戸崎5丁目 7LDK戸建
◎2025年12月 全室のクロス貼り替え済み
◎海が見える物件
◎駐車スペース5台分
月々の
支払例
支払例
万円
年
%
円
※福岡銀行/借入金11,800万円、返済期間35年、金利1.025%変動型)の場合
※審査により金利は変わる可能性があります。
物件概要
- 交通
-
香椎線 西戸崎駅 まで 徒歩18分
- 接道状況
- 土地面積
- 396.73㎡ (120.01坪)
- 建物面積
- 306.98㎡ (92.86坪)
- 築年数
-
1998年
(平成10)
1月
築28年 - 建ぺい率
- 60%
- 容積率
- 200%
- 土地権利
- 所有権
- 構造および階数
- 鉄骨造 一部:木造 地上3階建
- 小学校区
- 福岡市立西戸崎 ( 530m )
- 中学校区
- 福岡市立志賀 ( 1500m )
- 私道負担
- なし
- 地目
- 宅地
- 現況
- 空
- 引渡時期
- 即時
- 駐車場
- 有 5台
- 上水道
- 公共
- 下水道
- 公共
- ガス
- プロパン
- 都市計画
- 市街化区域
- 用途地域
- 1種住居
- 設備・条件
- システムキッチン、食器洗浄乾燥機、浴室乾燥機、トイレ2箇所、ウォークインクローゼット、駐車場2台分、駐車場3台分、庭、エアコン、照明器具付き、全室照明付、家電付き、シャッター、電動シャッター、屋上、倉庫、キッチンに窓、浴室に窓、浴室暖房、火災報知機、物置、全居室収納、玄関収納、シューズボックス、押入れ、テラス、南面バルコニー、南庭、庭10坪以上
- 備考
-
■リフォーム
実施日:2025年12月
区分:内装リフォーム
箇所:キッチン、トイレ、壁、全室、全面、水回り
内容:クロス貼り替え - 取引態様
- 仲介



